コンド恵比寿 801号室

「恵比寿」駅徒歩2分 「代官山」「中目黒」駅も徒歩圏内 8階部分南東角住戸につき日当り良好 家具付き 全室エアコン付き
物件価格9,290万円
月々支払 252,343円
自己資金10万円、借入期間35年、金利0.775%の場合、
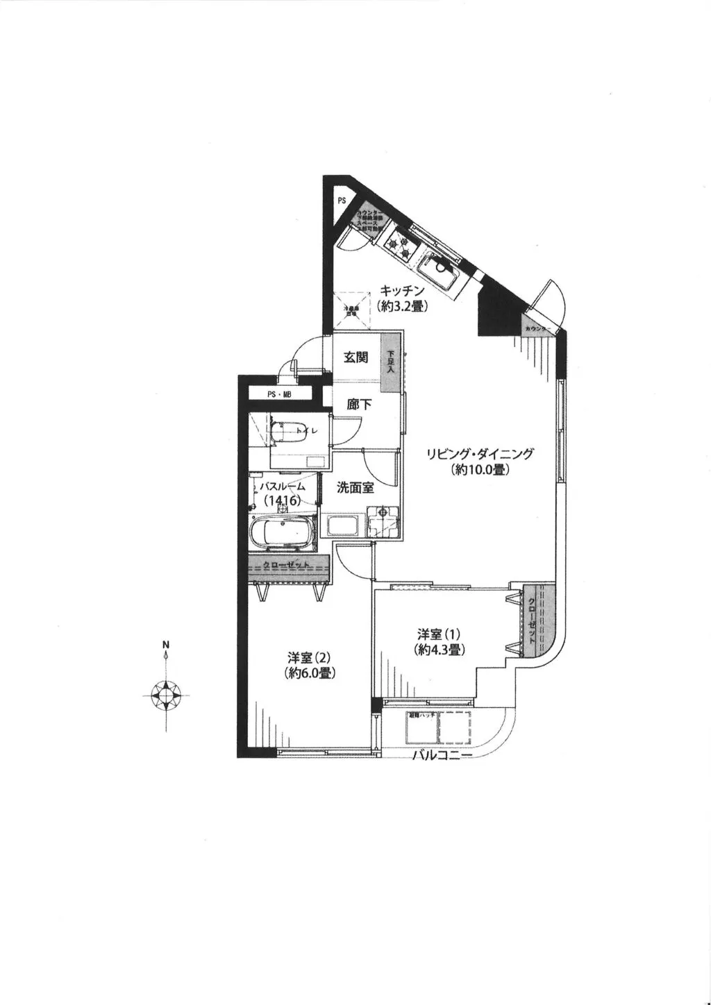
間取り図

物件写真

交通機関
JR山手線「恵比寿」駅徒歩4分 日比谷線「恵比寿」駅徒歩2分 東急東横線「代官山」駅徒歩6分
詳細情報
物件名
コンド恵比寿 801号室
物件種類
中古マンション
所在地
渋谷区恵比寿西1-20-8
最寄り駅
JR山手線「恵比寿」駅徒歩4分 日比谷線「恵比寿」駅徒歩2分 東急東横線「代官山」駅徒歩6分
価格
9,290万円
間取り
2LDK
専有面積
55.46㎡
その他面積
バルコニー面積:2.48㎡
向き
南東
用途地域
商業地域
建物構造
鉄骨鉄筋コンクリート造(SRC)
築年月
1981年11月
総戸数
22戸
階建
11階建8階部分
施工会社
北野建設株式会社
管理会社
株式会社東急コミュニティー
管理費
26,070円/月額
修繕積立金
31,450円/月額
現況
空室
引渡日
即日
敷地権利
所有権
駐車場
無
共用施設
特になし
リフォーム
リノベーション済み
ペット
不可
その他
食洗器付システムキッチン 浴室換気乾燥機付・追炊き機能付ユニットバス 全室エアコン付
ちらし

