ルネ蕨一号館 406号室

「蕨」駅徒歩8分 大規模開発が進む蕨市西口エリア 南東向きにつき日当たり良好 キッチンに食洗器・オールインワン浄水栓が標準装備 安心の新耐震基準マンション
物件価格4,280万円
月々支払 116,110円
自己資金10万円、借入期間35年、金利0.775%の場合、
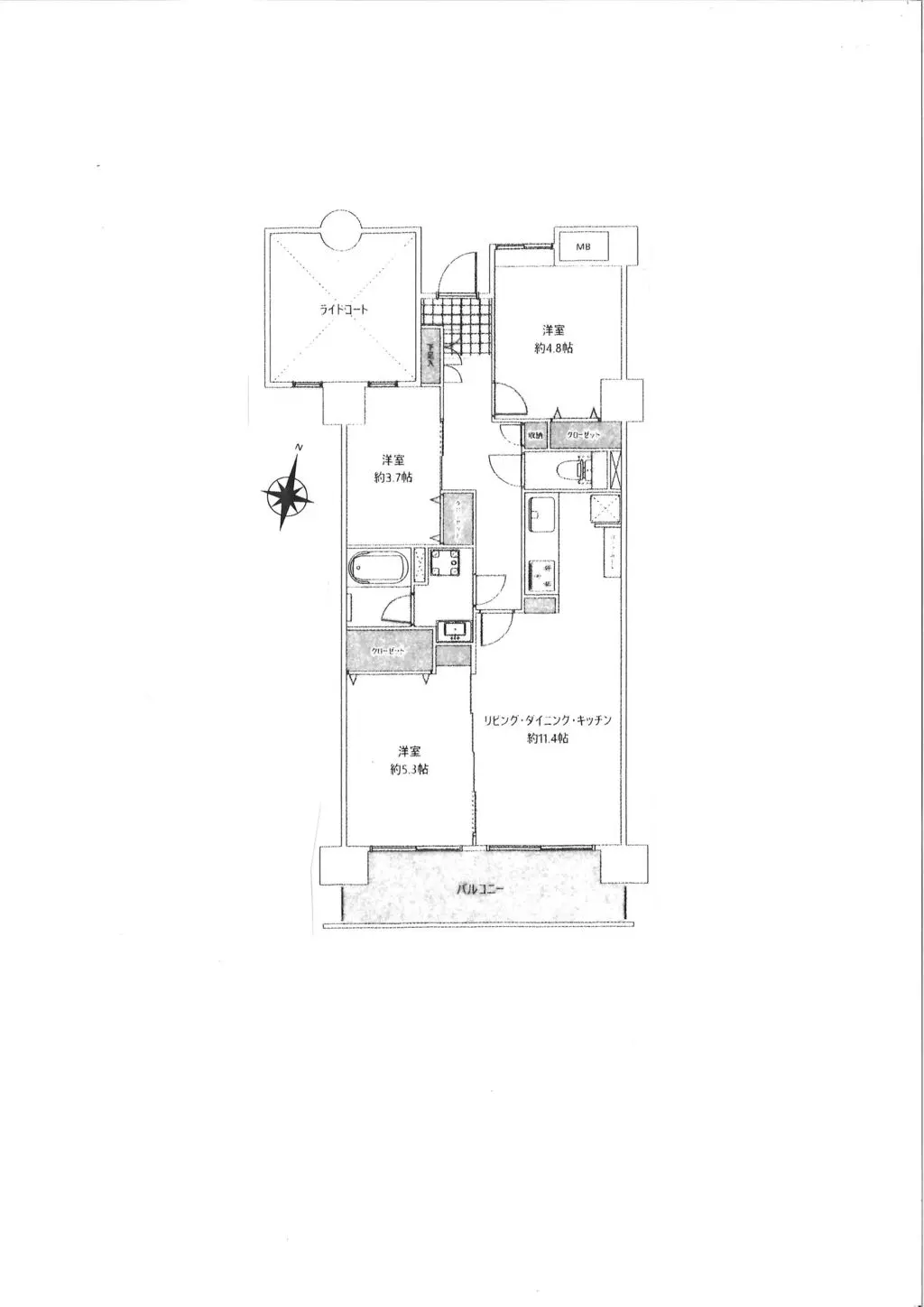
間取り図

物件写真

交通機関
京浜東北線「蕨」駅徒歩8分
詳細情報
物件名
ルネ蕨一号館 406号室
物件種類
中古マンション
所在地
埼玉県蕨市中央1-17-30
最寄り駅
京浜東北線「蕨」駅徒歩8分
価格
4,280万円
間取り
3LDK
専有面積
65.46㎡
その他面積
バルコニー面積:9.23㎡
向き
南東
用途地域
第一種住居地域
建物構造
鉄骨鉄筋コンクリート造(SRC)
築年月
1986年2月
総戸数
342戸
階建
11階建4階部分
施工会社
前田建設工業株式会社
管理会社
株式会社長谷工コミュニティ
管理費
7,600円/月額
修繕積立金
11,130円/月額
現況
空室
引渡日
即日
敷地権利
所有権
駐車場
有(10,000円~12,500円/月額)
共用施設
特になし
リフォーム
リノベーション済み
ペット
可
その他
※ポスティング用のちらしについて販売価格の表示に一部誤りがありました。正しくは4,280万円になります。申し訳ございませんでした。
ちらし

