北大塚三丁目一戸建

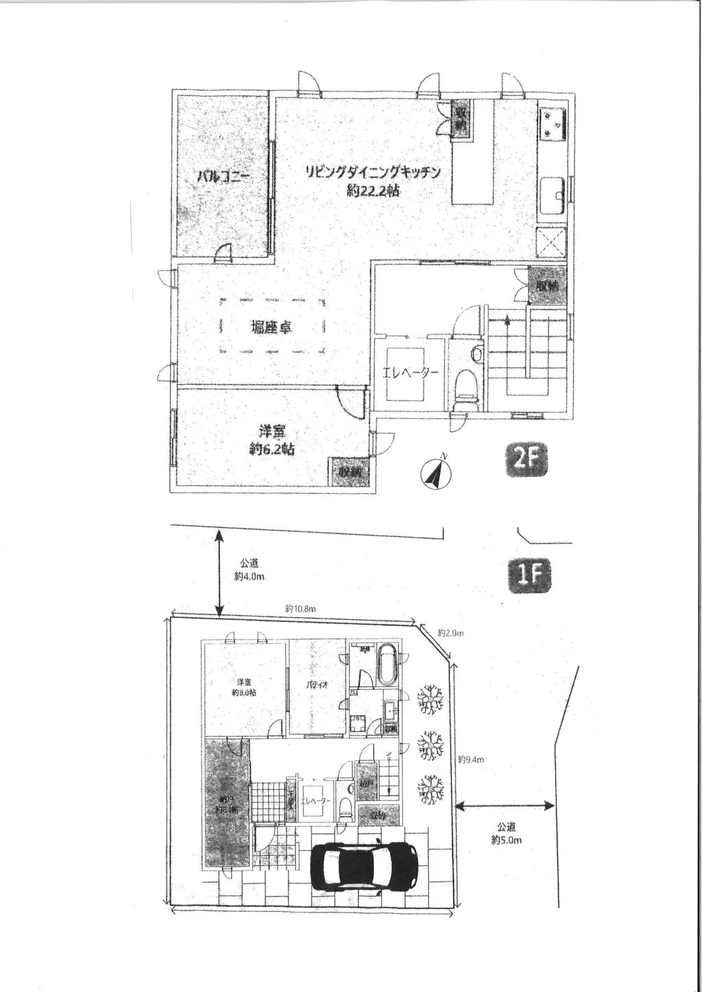
北大塚三丁目一戸建 116.54㎡(1階53.01㎡ 2階63.53㎡)3LDK 土地面積134.60㎡ 三井ホーム設計・施工 販売価格29,800万円 JR山手線「大塚」駅徒歩6分の角地
物件価格29,800万円
月々支払 円
間取り図

物件写真 
交通機関
JR山手線「大塚」駅徒歩6分
詳細情報
物件名
北大塚三丁目一戸建
物件種類
中古戸建
所在地
東京都豊島区北大塚3-2-8
最寄り駅
JR山手線「大塚」駅徒歩6分
価格
29,800万円
間取り
3LDK
専有面積
116.54㎡
その他面積
土地面積:134.60㎡
向き
南西
用途地域
第1種住居地域
建物構造
木造スレートぶき造
築年月
2016年9月
総戸数
階建
2階建て
施工会社
三井ホーム株式会社
管理会社
管理費
修繕積立金
現況
空室
引渡日
即日
敷地権利
所有権
駐車場
有
共用施設
リフォーム
ペット
その他
ホームエレベータ ガスオーブン タッチレス水栓 ジャグジー 駐車場付き
ちらし

